Mẫu thiết kế nhà gỗ 3 gian 22 cột kết hợp nhà biệt thự mái Nhật đang trở thành xu hướng được nhiều gia chủ yêu thích. Với một không gian sống vừa đậm bản sắc truyền thống, vừa tiện nghi, sang trọng theo phong cách hiện đại. Sự giao thoa hài hòa giữa nếp nhà gỗ cổ truyền Bắc Bộ với hệ mái Nhật thanh thoát không chỉ tạo nên dấu ấn kiến trúc độc đáo, mà còn thể hiện gu thẩm mỹ tinh tế của chủ nhân. Hãy cùng xem kiến trúc này được các kiến trúc sư bố trí như thế nào trong nội dung bài viết dưới đây.
Tham khảo thêm video mẫu thiết kế nhà gỗ sân vườn 525m2

Nội dung chính
Tổng quan về mẫu thiết kế nhà gỗ 3 gian 22 cột kết hợp nhà biệt thự

- Khuôn viên thiết kế nhà gỗ 3 gian kết hợp nhà ngang mái Nhật được thực hiện trên diện tích tiêu chuẩn khoảng 460m2. Trong đó thiết kế nhà gỗ 3 gian có diện tích 73m2, diện tích nhà ngang khoảng 116m2, còn lại là phần sân vườn, tường rào. Với phần mái ngói lợp ngói ta nung thủ công và không gian thờ tự đẹp và sang trọng.
- Khuôn viên sẽ bao gồm những phần như sau: 1 căn nhà gỗ 3 gian, 1 căn nhà biệt thự, cổng, tường rào, sân vườn được bố trí cảnh quan đẹp.
- Khuôn viên này có thể đáp ứng cho gia đình 3 thế hệ có thể cùng chung sống. Đây là không gian được đại gia đình thường xuyên ở, vì có cùng hai khuôn viên nhà thờ và nhà biệt thự trên cùng một khuôn viên.
Giới thiệu chi tiết về mẫu thiết kế nhà gỗ 3 gian 22 cột
Sau đây sẽ là những thông số kỹ thuật, thiết kế hiên, mái của thiết kế nhà gỗ 3 gian.
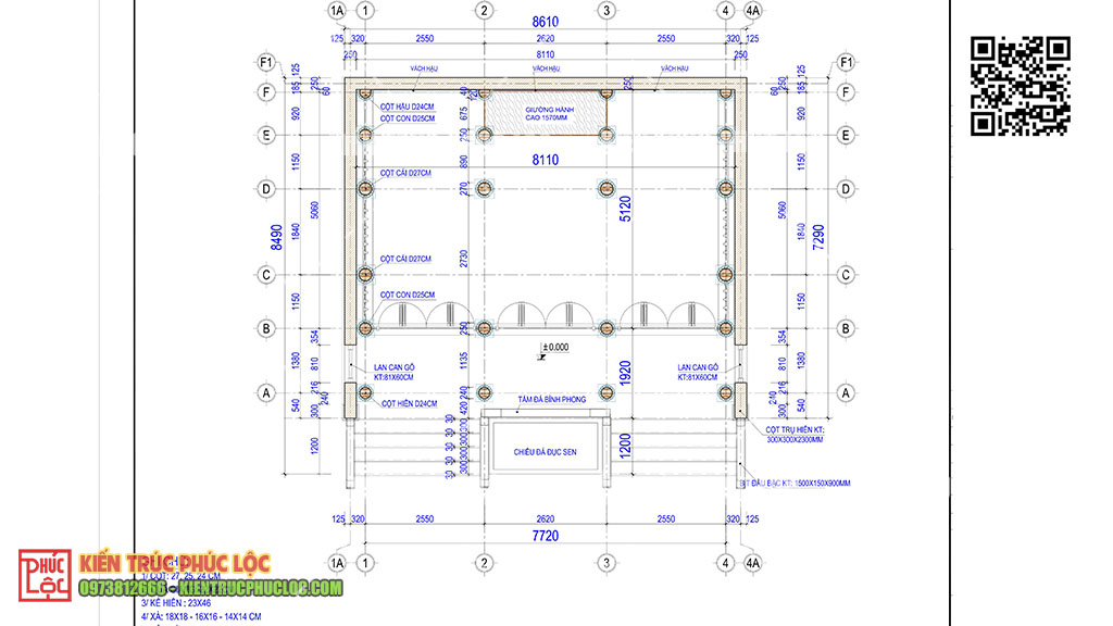
Thông số kỹ thuật nhà gỗ 3 gian 22 cột

- Nhà gỗ 3 gian chiều dài 8,61m; chiều sâu nhà 8,49m (bao gồm hiên – không tính bậc tam cấp). Gian chính giữa có khoảng gian 2,62m, hai gian bên có khoảng gian 2,55m (kích thước tính tim cột)
- Ngôi nhà gỗ 3 gian có 22 cột thứ tự kích thước các cột như sau: cột cái có đường kính 29cm, cột con có đường kính 27cm, cột hiên có đường kính 25cm, cột có đường kính 24cm.
- Nhà gỗ 3 gian sử dụng dòng gỗ lim tali Nam Phi, hàng thương hiệu trên thị trường.
Thiết kế phần hiên nhà gỗ 3 gian 22 cột


- Hiên nhà gỗ được thiết kế với kích thước tiêu chuẩn. Với hàng cửa bức bàn được làm theo kiểu pano đặc, trên đục ngũ phúc dưới đục tùng cúc trúc mai, đào lê thủ lựu, hoa sen…
- Phần gạch lát nền được gia chủ yêu thích và làm theo mong muốn. Chất liệu gạch thường là gạch đỏ Bát Tràng có độ bền, chống trơn trượt tốt, vô cùng phổ biến khi làm nhà gỗ kẻ truyền. Phần bậc tam cấp được lát đá với 5 bậc, ở giữa có chiếu rồng đẹp mắt, giúp lên xuống được thuận lợi hơn.
Thiết kế phần mái nhà gỗ 3 gian 22 cột

- Mẫu thiết kế nhà gỗ 3 gian có phần mái được lợp ngói ta nung thủ công, bao gồm 2 mái. Độ dốc đạt tỉ lệ 68%, tạo sự thoát nước tốt. Viền quanh mái là những đường bờ nóc, bờ chảy đắp bê tông, làm theo đúng khuôn viên nhà cổ truyền.
- Để giúp căn nhà tăng thêm giá trị thẩm mỹ. Trên mái được trang trí thêm những chi tiết hoa văn đẹp như: gạch hoa tranh, chiện nóc và đấu lớn. Ngoài ra, còn có phần đại tự trên nóc được đắp đẹp và trang trọng.
Tổng thể thiết kế biệt thự mái Nhật trong khuôn viên


- Mẫu thiết kế nhà biệt thự mái Nhật trong khuôn viên sân vườn. Là không gian hài hoà giữa kiến trúc hiện đại và truyền thống. Ngôi nhà được thiết kế 2 tầng với diện tích khoảng 116m2. Đầy đủ những phòng chức năng cho sinh hoạt.
- Căn nhà được bố trí công năng hợp lý bao gồm: phòng khách, phòng bếp, phòng ngủ, phòng ăn, nhà vệ sinh, các phòng chức năng khác…Đầy đủ công năng sinh hoạt cho gia đình, không gian riêng tư cho các thành viên.
- Bố trí căn nhà giúp đáp ứng nhu cầu cá nhân của gia đình, vừa có không gian sinh hoạt tiếp khách, vừa có không gian riêng tư nhất định cho mọi thành viên trong gia đình. Đây là một trong những kiểu nhà ưa chuộng có sự kết hợp giữa truyền thống và hiện đại, xu hướng trong những năm gần đây.
Giới thiệu chi tiết về cảnh quan sân vườn xung quanh khuôn viên
Sau đây sẽ là phần chi tiết về cảnh quan sân vườn xung quanh khuôn viên của mẫu thiết kế.
Thiết kế phần cổng tường rào nhà gỗ

- Cổng nhà gỗ cổ truyền được làm theo kiểu hai mái đẹp, với phần trụ cổng được xây gạch trát vừa bê tông. Cánh cổng gỗ 2 cánh, với các phần khung song tuy tối giản nhưng đẹp mắt. Tạo nên tính thẩm cao cho công trình nhà gỗ kẻ truyền.
Thiết kế phần khuôn viên sân vườn nhà gỗ
- Tường rào được chia thành các ô, lợp mái ngói, kết hợp với gạch xây trát và sơn đẹp và ấn tượng, đồng thời hài hòa hơn với công trình. Đây là mẫu thiết kế đẹp và phổ biến ở ngôi gỗ kẻ truyền Bắc Bộ.
- Sân vườn của mẫu thiết kế là một khoảng khá rộng, được lát gạch đỏ, chống trơn trượt, đảm bảo cho chúng ta việc di chuyển và đi lại.
- Ngoài ra, ở hai bên của khuôn viên được bố trí nhiều cây cối, chậu hoa, cây cau, mộc hương, tạo không gian xanh mát và ấn tượng.
Giới thiệu đơn vị thiết kế nhà gỗ cổ truyền Bắc Bộ
Kiến trúc Phúc Lộc là một đơn vị chuyên thiết kế các công trình nhà gỗ cổ truyền. Như: nhà gỗ 3 gian, nhà gỗ 5 gian, nhà thờ từ đường, nhà gỗ sân vườn…Với nhiều năm kinh nghiệm trong nghề và nghiên cứu kiến trúc cổ truyền.
Chúng tôi luôn đảm bảo từng chi tiết thiết kế sẽ mang lại những giá trị tinh thần. Cũng như thể hiện đúng nét kiến trúc cổ truyền của Bắc Bộ.
Được thừa hưởng tinh hoa kiến trúc từ các nghệ nhân làm nhà gỗ tại làng nghề Chàng Sơn, huyện Thạch Thất Hà Nội.
Trải qua nhiều năm nghiên cứu về kiến trúc nhà Bắc Bộ. Đến nay kiến trúc Phúc Lộc đã thiết kế nhiều công trình trên cả nước. Trong số đó rất nhiều công trình đã được thi công trên thực tế. Điển hình như: Hà Nội, Bắc Ninh, Bắc Giang, Nghệ An…
Ngoài việc thiết kế, thì chúng tôi còn có cơ sở trực tiếp sản xuất. Đông thời thi công trọn gói công trình. Mang tên thương hiệu là nhà gỗ Phúc Lộc.
Nhà Gỗ Phúc Lộc là một trong những xưởng gỗ giữ gìn được nghề làm nhà gỗ kẻ truyền. Được thành lập và đi lên dưới sự quản lý của chuyên gia nhà gỗ Nguyễn Huy Khiêm. Cùng đội ngũ các bác thợ lâu năm, giàu kinh nghiệm trong làng Chàng Sơn.
Tóm lại những mẫu thiết kế nhà gỗ 3 gian 22 cột kết hợp biệt thự mái Nhật trên đây. Là sự kết hợp tinh tế giữa kiến trúc nhà gỗ truyền thống và không gian biệt thự hiện đại tạo nên một tổng thể hài hòa, vừa bề thế, trang nghiêm, vừa tiện nghi, thoáng đãng. Nhà gỗ 3 gian 22 cột giữ trọn hồn cốt kiến trúc Bắc Bộ, tôn vinh giá trị thờ tự, sum họp gia đình; trong khi khối biệt thự mái Nhật bổ trợ hoàn hảo cho nhu cầu sinh hoạt, nghỉ dưỡng dài lâu.
Thông tin về kiến trúc Phúc Lộc
Hotline: 0973 812 666
Nhận tư vấn thiết kế: Th.s kiến trúc sư Nguyễn Huy Khiêm
Xưởng sản xuất: xã Cần Kiệm, huyện Thạch thất, Tp Hà Nội (dưới chân núi chùa Tây Phương)
>Tham khảo: những video hay về kiến trúc nhà cổ truyền
>Tham khảo: những dự án thiết kế đẹp mắt
>Tham khảo: Kiến Trúc Phúc Lộc
