Kích thước là yếu tố quan trọng quyết định đến sự cân đối và tiện nghi của nhà gỗ 3 gian 2 chái. Việc xác định đúng kích thước ngay từ đầu không chỉ giúp không gian thờ cúng và sinh hoạt tách bạch hợp lý mà còn hạn chế sai sót khi thi công. Trong bài viết này, gia chủ hãy cùng tìm hiểu kích thước nhà gỗ 3 gian 2 chái phù hợp với mặt bằng, nhu cầu sử dụng và điều kiện thực tế.
Video về mẫu nhà gỗ 3 gian 2 chái được hoàn thiện

Nội dung chính
Tại sao cần xác định kích thước nhà gỗ 3 gian 2 chái chuẩn?
Việc xác định kích thước nhà gỗ 3 gian 2 chái chuẩn sẽ giúp nhà có kết cấu vững chắc và thẩm mỹ hơn. Nhà gỗ truyền thống là công trình được lắp ghép từ nhiều cấu kiện gỗ nên nếu kích thước các gian và khoảng cách cột không đúng chuẩn thì lực chịu tải sẽ phân bố không đều, dễ gây cong vênh, xô lệch.
Bên cạnh đó, kích thước chuẩn còn giúp không gian bên trong nhà hài hòa, dễ bố trí khu vực thờ cúng, sinh hoạt, 2 chái phụ và thêm các vật dụng nội thất trang trí trong nhà. Vì vậy, gia chủ nên tính toán kỹ lưỡng về kích thước và tỷ lệ các gian trong nhà để dễ dàng thi công và kiểm soát chi phí từ đầu.

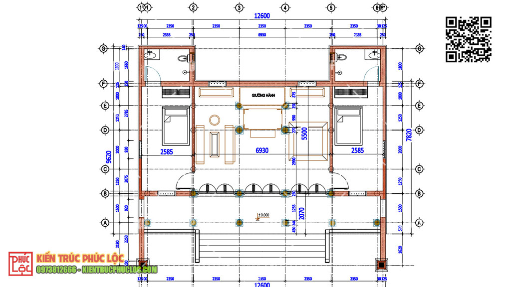
Mặt bằng kích thước nhà gỗ 3 gian 2 chái chuẩn cho gia chủ tham khảo

Theo bố cục truyền thống, nhà gỗ 3 gian 2 chái được tổ chức theo dạng đối xứng, gồm 3 gian chính ở trung tâm và 2 chái phụ bố trí hai bên. Kích thước nhà gỗ 3 gian 2 buồng thường được thi công với các thông số phổ biến sau, tùy vào diện tích đất:
- Chiều ngang tổng thể: khoảng 12-16m, tùy độ rộng mỗi gian và quy mô công trình.
- Chiều sâu nhà: khoảng 7-9m, bao gồm không gian trong nhà và phần hiên phía trước.
- Bề rộng mỗi gian chính: thường từ 3-3,6m (tính theo tim cột), trong đó gian giữa dùng cho không gian thờ, 2 gian bên phục vụ sinh hoạt chung hoặc tiếp khách.
- Bề rộng mỗi chái: phổ biến từ 2,5-3m, thường bố trí phòng ngủ hoặc không gian sinh hoạt phụ.
- Chiều sâu các gian: dao động khoảng 4,5-5,5m, giúp không gian bên trong thông thoáng và dễ sắp xếp các vật dụng nội thất.
Xác định kích thước nhà gỗ 3 gian 2 chái dựa vào những yếu tố nào?
Để xác định kích thước nhà gỗ 3 gian 2 buồng phù hợp khi thi công, gia chủ cần xem xét nhiều yếu tố. Trong đó, diện tích mặt bằng, nhu cầu sinh hoạt và ngân sách là 3 yếu tố ảnh hưởng trực tiếp từ khâu thiết kế đến thi công, hoàn thiện.
Diện tích mặt bằng

Với những khu đất rộng, gia chủ có thể lựa chọn kích thước gian và chái lớn hơn để tạo không gian thoáng đãng, thuận tiện trong sinh hoạt. Nếu diện tích mặt bằng hạn chế, gia chủ có thể tối giản các chi tiết nội thất và đục chạm để giúp ngôi nhà rộng rãi hơn. Điều quan trọng là cần cân đối chiều ngang và chiều sâu theo tỷ lệ phù hợp để đảm bảo yếu tố thẩm mỹ và phong thủy.
Nhu cầu sinh hoạt của gia đình
Gian giữa của nhà gỗ 3 gian cần đủ rộng để có thể bố trí án gian, hoành phi, câu đối đầy đủ cho khu vực thờ cúng. Trường hợp gia đình đông người, nhiều thế hệ sinh sống, 2 chái cần được mở rộng để làm phòng ngủ, không gian nghỉ ngơi hoặc sinh hoạt phụ. Vì vậy, gia chủ cần xác định rõ nhu cầu sinh hoạt của gia đình để tính toán kích thước từng gian cho hợp lý, hạn chế khả năng phải cải tạo, chỉnh sửa sau này.
Ngân sách thi công

Kích thước nhà gỗ 3 gian 2 chái càng lớn sẽ kéo theo khối lượng gỗ sử dụng, cấu kiện và chi phí nhân công tăng cao. Nhiều gia chủ lựa chọn điều chỉnh kích thước gian và chái ở mức vừa phải để phù hợp với ngân sách nhưng vẫn đảm bảo gian thờ cúng được chăm chút kỹ lưỡng. Gia chủ cần bàn bạc rõ ràng với đơn vị thiết kế và thi công về tổng chi phí để có mức dự trù hợp lý, hạn chế phát sinh và đảm bảo thi công đúng tiến độ, đúng kỹ thuật.
Một số lưu ý về kích thước nhà gỗ 3 gian 2 chái

Kích thước nhà gỗ 3 gian 2 buồng liên quan trực tiếp đến kết cấu, công năng sử dụng và giá trị của kiến trúc truyền thống. Dưới đây là một số lưu ý về kích thước nhà 3 gian 2 buồng gia chủ nên tham khảo:
- Ba gian chính không nên làm quá hẹp, đặc biệt là gian giữa vì đây là nơi đặt bàn thờ ông bà tổ tiên. Gian giữa cần đủ rộng để bài trí đồ thờ và tiện cho việc thờ cúng.
- Hai chái nên nhỏ hơn gian chính, thường chỉ dùng làm phòng ngủ hoặc không gian phụ. Nếu chái quá rộng sẽ gây mất cân đối.
- Khoảng cách giữa các cột phải đều nhau để tránh tình trạng gian to gian nhỏ lộn xộn vì sẽ ảnh hưởng cả thẩm mỹ lẫn kết cấu.
- Phải tính luôn phần hiên khi lên kích thước, hiên thường rộng khoảng 1,5-2m.
- Kích thước nhà phải phù hợp diện tích đất, không nên làm nhà quá to so với khuôn viên sân vườn vì sẽ gây chật chội khi sử dụng.
Việc xác định kích thước nhà gỗ 3 gian 2 chái chuẩn, phù hợp với diện tích mặt bằng trước khi thi công rất quan trọng. Khi nắm rõ mặt bằng, gia chủ sẽ dễ dàng lựa chọn phương án phù hợp, vừa đảm bảo kiểu dáng nhà gỗ truyền thống, vừa thuận tiện trong sinh hoạt và kiểm soát chi phí. Để tính toán kích thước chuẩn, gia chủ hãy liên hệ ngay với Nhà gỗ Phúc Lộc để được tư vấn kỹ lưỡng và tận tình cho công trình nhà gỗ truyền thống.
Thông tin về kiến trúc Phúc Lộc
Hotline: 0973 812 666
Nhận tư vấn thiết kế: Th.s kiến trúc sư Nguyễn Huy Khiêm
Xưởng sản xuất: xã Cần Kiệm, huyện Thạch thất, Tp Hà Nội (dưới chân núi chùa Tây Phương)
>Tham khảo: những video hay về kiến trúc nhà cổ truyền
>Tham khảo: những dự án thiết kế đẹp mắt
>Tham khảo: Kiến Trúc Phúc Lộc
